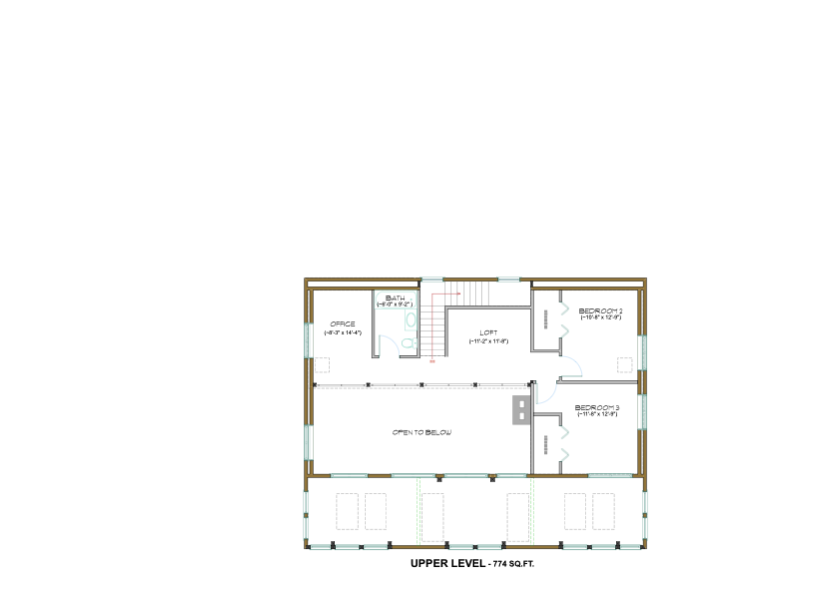
This package is a 3-4 Bedroom Southern Pines with two car garage and mudroom/utility. The main house footprint is 38 feet deep by 48 feet long plus and extra 10 feet in length for the Garage offset. This model has an extra deep sunspace- from feedback of our customers that the sunspace is the favorite room of their house.
There is 2784 Square feet in the main and upper level and 1824 additional square feet in the basement. The two car garage and mudroom add an additional 780 square feet.
Options included are:
There is 2784 Square feet in the main and upper level and 1824 additional square feet in the basement. The two car garage and mudroom add an additional 780 square feet.
Options included are:
Walk-out lower level
The south lower level built with Gluelams to match the main level
Two car Garage with mudroom/utility
This is an addition off the Northwest corner to provide convenient entry from you cars to the kitchen, through the pantry/utility/mudroom.
Doubled East and West walls
Doubled East and West inner-shell walls for additional strength, energy-efficiency, and thermal mass. This package is suitable for climates up to Hudson Bay, Canada. Or easy to air-condition in Texas.
This package is in production and ready for shipment early May 2013. Contact Julius Toth at EdenSafe for details and price.